产品分类
products
联系麻豆视频下载 / contact us
地址:上海市金山区枫泾镇环东一路
邮编:201507
网址:www.jhwfbzp.com
销售部
手机:13353397666
电话:021-5648 6189
传真:021-5186 1633
商务QQ:3038069780
QJ型深井潜水电泵
当前位置:首页 > QJ型深井潜水电泵QJ型深井潜水电泵
以下为系列产品选型范围,具体型号参考性能参数表
口径范围 : 40-120mm
流量范围 : 5-200m3/h
扬程范围 : 15-380m
优势:
品牌知名度高、质量可靠、终身维护
常规产品现货供应
订做产品交货及时
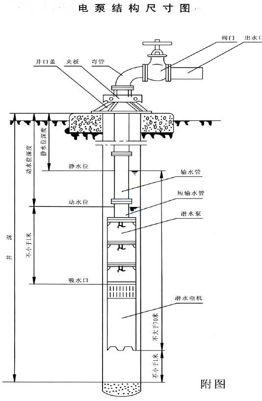
QJ型井用潜水电泵是电机与水泵直联一体潜入水中工作的提水机具,它适用于从深井提取地下水、也可用于河流、水库、水渠等提水工程:主要用于农田灌溉及高原山区的人畜用水,亦可供城市、工厂、铁路、矿山、工地供排水使用。
产品特点
1、电机、水泵一体,潜入水中运行,安全可靠。
2、对井管、扬水管无特殊要求(即:钢管井、灰管井、土井等均可使用;在压力许可下、钢管、胶管、塑料管等均可作扬水管使用)。
3、安装、使用、维护方便简单,占地面积小、不需建造泵房。
4、结构简单、节省原材料。
潜水电泵使用的条件是否合适,管理得当与使用寿命有直接的关系。




